průzkumy — dokumentace — koncepce obnovy — publikace — kopie dekorací (od 2001)
Divadlo na zámku v Litomyšli je druhým nejstarším kompletně zachovaným divadlem u nás. Kromě jednoduché jevištní techniky se může pochlubit početným souborem dekorací vídeňského dvorního malíře Josefa Platzera.
Divadlo v Litomyšli stojí na začátku všech mých aktivit týkajících se historických divadel. Když jsem se tu zúčastnil své skoro první studentské praxe pod vedením Jiřího Látala (restaurování malby na jevištním portálu v r. 1997), nenapadlo mě, jak mi tohle místo postupně přiroste k srdci. Rád bych se dočkal toho, aby má práce časem napomohla ke zprovoznění jedinečné jevištní mašinérie a možnosti předvést zde jako na jednom z mála míst na světě základní efekt divadla 18. století – výměnu skvělých Platzerových dekorací na (vhodně osvětlené) otevřené scéně.
Nejdůležitější projekty týkající se litomyšlského divadla shrnuje následující přehled.
1998 Milenec a sok v jedné osobě
Když se blížilo dvousté výročí vzniku divadla, objevil se nápad oslavit je novodobým nastudováním hry, kterou bylo v dubnu 1798 otevřeno a která měla v jeho historii důležitou úlohu: Zieglerova Milence a soka v jedné osobě. Inscenace dobového překradu Prokopa Šedivého Hrabě a rytíř Milislav aneb Tepličtí kováři se skvěle zhostila Irena Truhlářová (v roce 2008 o ní vznikla podrobná bakalářská práce). Zkoušení a hraní v unikátním prostředí vzbudilo zájem o jeho hlubší poznání a ve výsledku mě přivedlo nejen k průzkumům litomyšlského divadla, ale ke všem „divadelním“ aktivitám popsaných na těchto stránkách.
2001 sdružení Milislav a dokumentace divadla
Vzrůstající zájem o zámecké divadlo, jeho vybavení a historii vyústil v roce 2001 v založení občanského sdružení Milislav (podle hraběte z Milence a soka). Díky vstřícnosti správy zámku a s významnou podporou českokrumlovské Nadace barokního divadla, sdružení CORA a dalších i mezinárodních kontaktů se nám podařilo v rychlém sledu dokončit množství výstupů – podrobnou dokumentaci divadla včetně vůbec prvních barevných fotografií alespoň části souboru dekorací nebo studii možností jeho prezentace a využití. Národní památkový ústav (NPÚ) tehdy bohužel o jakoukoli spolupráci nejevil zájem a tím byly možnosti sdružení brzy vyčerpány a utlumeny, až jsme se v roce 2005 rozhodli jeho činnost ukončit.
V provozu zůstaly internetové stránky sdružení s informacemi o divadle, od roku 2005 ovšem neaktualizované.
2003 sborník Materiály k dějinám zámeckého divadla v Litomyšli
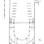
Významným výstupem práce sdružení byl v roce 2003 sborník Materiály k dějinám zámeckého divadla v Litomyšli. Podařilo se do něj sepsat výsledky probíhajících průzkumů nebo přepisy důležitých archiválií, mezi nimi i do té doby neznámé Pamětní knihy zámeckého divadla s informacemi o představeních z druhé čtvrtiny 19. století. Text o průzkumech dřevěných konstrukcí divadla jsme napsali s Ondřejem Protivou, který vyrobil názornou axonometrii jeviště a jevištní mašinérie; jeho upravená verze vyšla v roce 2004 v časopise Zprávy památkové péče (citace sborníku i článku viz publikace).
2010 brožura Zámecké divadlo v Litomyšli
Dalším viditelným výstupem studia zámeckého divadla se v roce 2010 stala brožura Zámecké divadlo v Litomyšli, vydaná díky programu MK ČR Podpora pro památky UNESCO. Graficky ji upravil vydavatel Ivan Ulrich z nymburského nakladatelství VEGA-L; formátem jsme navázali na už existující podobné brožury o divadlech v Českém Krumlově a Mnichově Hradišti. Poprvé zde byly publikovány např. barevné fotografie vybraných dekorací nebo jejich srovnání s Platzerovými návrhovými kresbami (citace viz publikace).
Přestože činnost sdružení jsme ukončili, mé divadelní aktivity se postupně rozrůstaly a i v dalších letech jsem se snažil upozorňovat na jedinečnost litomyšlského divadla a inspirovat jeho správce k jeho lepší prezentaci. Litomyšl i naše další divadla jsem propagoval v rámci zastupování českokrumlovské Nadace barokního divadla v evropské asociaci PERSPECTIV. Postupným krokům k obnově divadla byla přístupná až kastelánka Zdeňka Kalová (v Litomyšli do 2020), která byla také jako jedna z mála zástupců našich divadel aktivní i v celoevropském projektu Cesty historických divadel. V rámci dalších projektů vzniklo např. heslo o divadle pro internetovou databázi divadelní architektury nebo video o něm v rámci propagaci divadel Císařské cesty.
2017 soupis dekoračních sad
Soubor Platzerových dekorací je velmi početný a bez znalosti původní podoby jednotlivých scén je těžké se v něm orientovat a učinit si o něm dobrou představu. V roce 2017 jsem proto pro zámek sestavil podrobný přehled všech dekoračních sad doplněný o dostupné podkladové materiály (Platzerovy kresby, grafiky podle nich nebo archivní fotografie sad sestavených na jevišti).
2018 kopie vzduchových sufit
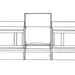
Od roku 1993 jsou na jevišti prezentovány kopie bočních kulis Zahrady, doplněné tehdy také kopií prospektu Venkovské krajiny (ten byl původně používán jako „zkrácení lesa“ za třetím párem lesních kulis) a instalované pod draperiové sufity slavnostních sálů. Nesourodá a matoucí kombinace byla prezentována jako Francouzská zahrada.
V roce 2018 vznikly kopie „vzduchových“ sufit, které byly používány pro všechny exteriérové scény. Kopie představovaly první krok k sjednocení scény na jevišti. Originály sufit slavnostních sálů mohly být přemístěny do depozitáře; v budoucnu by bylo vhodné je nahradit funkčními kopiemi, protože na rozdíl od stabilně zavěšených vzduchových sufit se při výměnách scén skládaly a vysouvaly nahoru.
2019 funkční kopie prospektu Zahrada
Kopie zahradních kulis byla v roce 1993 doplněna prospektem Venkovské krajiny, který byl původně používán ve zcela jiném kontextu (za třetí řadou kulis lesa jako „zkrácení lesní scény“) a navíc není Platzerovým dílem, ale pozdějším doplňkem souboru. Po dlouhých přípravách a diskusích jsme se rozhodli navrátit na jeviště prospekt Zahrady – a jeho rekonstrukci spojit konečně s funkční zkouškou vytahování prospektu původním způsobem, což je důležitý krok k budoucí možnosti předvedení celé výměny na otevřené scéně. V roce 2018 vznikla důkladná studie možností rekonstrukce zničeného prospektu, ze kterého se zachoval jen fragment; s pomocí Platzerova návrhu jsem připravil návrh v měřítku 1:10. I díky podpoře českokrumlovské Nadace barokního divadla bylo možné prospekt v roce 2019 namalovat a zavěsit na scéně, kde je tedy po mnoha letech konečně možné alespoň částečně předvést základní efekt, ke kterému bylo jeviště a jeho technické vybavení určeno.
2020 výstava Zámecká divadla Waldstein-Wartenbergů
V rámci Valdštejnského roku 2020 jsme se správou zámku připravili panelovou výstavu o zámeckých divadlech rodiny Waldstein-Wartenbergů – kromě toho litomyšlského se totiž shodou náhod zachovala i jejich menší a mladší divadla v Mnichově Hradišti a na Kozlu. Výstavu je možné si prohlédnout také online na webu zámku. V roce 2021 se z Litomyšle přestěhovala k zámeckému divadlu na Kačině. (Pozn.: Kolísající pravopis jména rodiny je odrazem lítého sporu, ve kterém sice převažuje „počeštěná“ verze, já se však záměrně držím historicky přesnější varianty).
Po letech studia srovnatelných památek a způsobů jejich využití jsem si stále jistější tím, že litomyšlské zámecké divadlo si zaslouží lepší péči a propagaci, než jaké se mu zatím dostává. Jestli budou správci divadla po slibných krocích v posledních letech pokračovat v naznačených tendencích není vůbec jisté; např. zatím dostupné obrysy připravované divadelní expozice ve druhém patře naznačují, že obrovský potenciál jedinečné památky a jejího vybavení zůstane i nadále spíše nevyužit. I přesto stále věřím tomu, že se v dohledné době lepší prezentace a péče o divadlo nakonec dočkáme.















































